Залишити заявку
Залишити заявку
Топографія ділянки під час будівництва
Геодезія та топографія у будівництві тісно переплетені, оскільки успішне виконання будівельних та землевпорядних робіт неможливе без попереднього проведення топографічних зйомок. Ці дослідження дозволяють отримати повну картину про рельєф, ґрунти, наявність підземних комунікацій та інші особливості території, що вкрай важливо для вибору оптимальних методів будівництва та запобігання можливим проблемам у майбутньому.
Топографія є невід’ємною частиною будівництва та землекористування, забезпечуючи точність та безпеку при реалізації найамбіційніших проектів. В Україні, як і в багатьох інших країнах, топографічна зйомка земельної ділянки є обов’язковою процедурою під час підготовки до будівництва. Замовити такі роботи можна у спеціалізованих компаній, що надають повний комплекс послуг, починаючи від топозйомки та закінчуючи створенням топографічних планів та карт. Однією з таких є Kaif House. Вартість цих послуг може змінюватись в залежності від безлічі факторів, включаючи площу ділянки, її місцезнаходження, складність рельєфу та інші.
Чому варто вибрати Kaif House для будівництва вашого будинку
Як виглядає процес будівництва будинку

Що до нього входить:
- Консультація з будівництва
- Підбір проекту майбутнього будинку
- Попередній розрахунок вартість будівництва
Це попередній етап, він допомагає познайомитися з нами, дізнатися про наші переваги і ні до чого вас не зобов’язує

Що до нього входить:
- Складання кошторису
- Затвердження етапів будівництва
- Затвердження існуючого проекту чи розробка нового
- Укладання договору
- Юридична допомога для оформлення початку будівництва
- Допомога з вибором ділянки (за потреби)
Можлива зміна типового проекту під ваші побажання

Що до нього входить:
- Підготовка ділянки до будівництва
- Розмітка фундаменту
- Земляні роботи
- Монтаж опалубки
- Заливання фундаменту
Заливка фундаменту – найважливіший та відповідальний етап будівництва, тому ми приділяємо йому велику увагу

Варіанти матеріалів для кладки стін:
- Каркасний будинок
- З газоблоків
- З бруса
- З цегли
- З СІП-панелей
Від вибору матеріалів стін залежать терміни та вартість будівництва

Що входить у роботи:
- Встановлення кроквяної системи для обраного варіанта даху (шатрова, вальмова, мансардна тощо)
- Монтаж ізоляційного шару покрівлі
- Монтаж покрівельного матеріалу (металочерепиця, м'яка покрівля, фальцева покрівля і т.д.)
Терміни та вартість монтажу покрівлі залежать від ціни матеріалів та складності конструкцій

Що входить у роботи:
- Встановлення вікон та дверей
- Фасадні роботи
Оздоблення фасаду – це фінальна стадія робіт зі зведення будинку
Зворотній зв'язок наших задоволених клієнтів
Залишіть номер телефону та менеджер зв'яжеться з вами
Напишіть у телеграм і запитайте менеджера
Відповіді на запитання, що часто ставляться
Які основні етапи включає процес топографічної зйомки ділянки?
Процес топографічної зйомки складається з кількох ключових етапів: підготовчий етап, що включає збирання вихідних даних та планування робіт; польові роботи, де проводиться безпосередній вимір координат та інших параметрів місцевості; обробка даних із використанням спеціалізованого програмного забезпечення для створення топографічних карт та планів; та підготовка підсумкової документації, включаючи технічний звіт та топографічний план.
Які фактори впливають на вартість топографічної зйомки?
На вартість топографічної зйомки впливають розмір ділянки, складність місцевості, необхідна точність зйомки, обсяг додаткових послуг (наприклад, підготовка технічного звіту або реєстрація результатів у держорганах), а також кваліфікація та репутація виконавця.
У чому різниця між топографічною та геодезичною зйомками?
Топографічна зйомка фокусується на детальному зображенні поверхні ділянки із зазначенням всіх об’єктів та рельєфу, тоді як геодезична зйомка орієнтована визначення точних координат об’єктів, вимірювання розмірів і форми Землі, і навіть контролю над будівництвом і моніторинг деформацій.
Чому вибір кваліфікованого підрядника важливий для проведення топографічних та геодезичних зйомок?
Вибір кваліфікованого підрядника гарантує точність та надійність даних, що критично важливо для успішного планування та реалізації будівельних проектів. Кваліфікація та досвід фахівців, наявність необхідних ліцензій та сучасного обладнання забезпечують високу якість робіт та відповідність результатів встановленим стандартам та вимогам.
Які технології та обладнання застосовуються під час проведення топографічної зйомки?
При проведенні топографічної зйомки використовуються електронні тахеометри для точних вимірювань відстаней та кутів, GPS-приймачі для визначення координат з високою точністю, безпілотні літальні апарати (дрони) для аерофотозйомки та відеозйомки місцевості, а також нівеліри для вимірювання висотних позначок. Це обладнання дозволяє отримувати актуальні та точні дані про місцевість для подальшого використання у проектуванні та будівництві.
Об'єкти, виконані нашою компанією
9 причин довірити нам будівництво
Даємо гарантію
Надаємо повну гарантію терміном на 10 роківЯкісні матеріали
Використовуємо лише якісні матеріали від найкращих постачальниківПрофесійні бригади
У нашій команді працюють лише найкращі майстри з досвідом роботи понад 9 роківІндивідуальний проект
Розробимо індивідуальний проект будинку за вашими побажаннямиПрацюємо за договором
Усі наші зобов’язання прописані у договорі. Фіксований кошторисНадаємо юридичні послуги
Допоможемо підібрати ділянку, оформити всі необхідні документи, здачу будинку в експлуатаціюБезкоштовний замір та розрахунок матеріалів
Безкоштовний виїзд фахівця та складання кошторису на роботиЧесний та прозорий бюджет
Поетапна оплата. Фіксована ціна на вартість робіт та матеріалиЗакінчуємо роботи у строк
Закінчуємо роботи точно в строк, зазначений у договоріНаші партнери
Сертифікати та ліцензії
Геодезія та топографія у будівництві
Топографічні та геодезичні зйомки лежать в основі будь-якого будівельного проекту. Ці роботи необхідні отримання актуальних даних місцевості, де планується будівництво. Топографія земельної ділянки надає інформацію про рельєф, розташування водних об’єктів, дерев, комунікацій та інших важливих елементів. Завдяки цим даними інженери та архітектори можуть коректно спланувати розташування майбутнього об’єкта, визначити необхідність у проведенні земляних робіт, передбачити заходи щодо відведення поверхневих вод та інші важливі аспекти проекту.

Геодезичні роботи допомагають визначити точні координати об’єктів на місцевості, висотні позначки, межі ділянок, що вкрай важливо для юридичної чистоти будівництва та запобігання конфліктам із сусідами або державними органами. Також геодезія необхідна для контролю за деформаціями будівель та споруд у процесі експлуатації.
Застосування топографічних зйомок у будівництві:
- Планування території. Перед початком будівництва топографічна зйомка допомагає визначити оптимальне розташування будівель, доріг, зон відпочинку, враховуючи особливості рельєфу та перешкоди.
- Проектування інженерних мереж. Топографічні дані необхідні для проектування систем водопостачання, каналізації, електропостачання, щоб забезпечити їх найбільш ефективне та економічне розміщення.
- Екологічне моделювання. З урахуванням топографічної зйомки проектуються заходи щодо зниження негативного впливу будівництва на навколишнє середовище, включаючи розміщення захисних зон, створення систем водовідведення та ін.
- Юридичний захист. Топографічна зйомка земельної ділянки використовується для підтвердження меж ділянки в юридичних документах, що дозволяє уникати суперечок із сусідами та державними структурами.
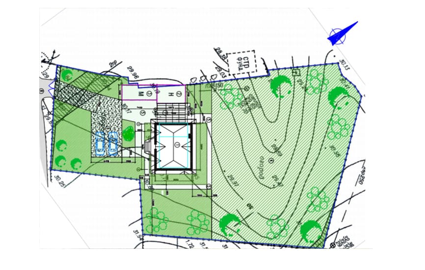
Тографія земельної ділянки
Це детальне зображення його поверхні із зазначенням усіх природних та штучних об’єктів, змін рельєфу, водойм та інших елементів. Ця інформація необхідна для ефективного планування будь-яких будівельних або землевпорядних робіт, визначення меж ділянки, а також для проектування інженерних мереж та комунікацій.

Важливість топографії земельної ділянки важко переоцінити, оскільки без точних та актуальних даних про місцевість неможливо забезпечити правильне розміщення об’єктів інфраструктури, гарантувати їхню безпеку та стійкість, а також уникнути можливих конфліктів із законодавством та сусідами Крім того, топографічна зйомка допомагає виявити потенційні проблеми, пов’язані з особливостями рельєфу або підземними. водами, ще до початку будівництва.
Топозйомка ділянки проводиться з використанням різних геодезичних інструментів і технологій, таких як тахеометри, нівеліри, GPS-системи, а також із застосуванням аерофотозйомки та дронів для отримання максимально точних і повних даних про місцевість .Топографічна зйомка земельної ділянки забезпечує отримання повної картини про місцевість, що необхідно для точного проектування та успішного виконання будівельних робіт без непередбачених проблем та витрат.
Процес топографічної зйомки включає наступні етапи:
- Підготовка. Аналіз наявних даних, планування робіт та підготовка необхідного обладнання.
- Вимір координат координат об’єктів, висотних позначок, зйомка рельєфу та інші спостереження безпосередньо на місцевості.
- Обробка результатів. об’єктів, ліній комунікацій, меж ділянок тощо
- Аналіз та надання висновку. Підготовка технічного звіту. для подальшого використання ділянки.
Особливості топозйомки в Україні
В Україні, як і в багатьох країнах світу, топографічна зйомка земельної ділянки є важливою частиною підготовки до будь-яких будівельних та землевпорядних робіт. Це технічна необхідність та юридична вимога, що дозволяє забезпечити правильне використання земель. та дотримання містобудівних норм.
Топографічна зйомка в Україні регламентується низкою законодавчих актів та нормативних документів, які визначають порядок проведення робіт, вимоги до їх якості та документації. Ключовими документами є Земельний кодекс України, Містобудівний кодекс, а також стандарти та інструкції, затверджені Міністерством регіонального розвитку, будівництва та ЖКГ України.
Особлива увага приділяється точності топографічних зйомок, оскільки вони лежать в основі всіх подальших етапів будівництва та землеустрою. /span>

Для проведення топографічної зйомки в Україні необхідно отримати відповідні дозволи від місцевих органів влади та інших заінтересованих інстанцій. Роботи повинні виконуватися кваліфікованими фахівцями, які мають ліцензію на право проведення геодезичних та картографічних робіт.
Топографічна зйомка ділянки повинна включати:
- Вимірювання меж та площі ділянки.
- Зйомка рельєфу та визначення висотних позначок.
- Фіксацію всіх природних та штучних об’єктів на території.
- Відображення підземних та надземних комунікацій.
- Підготовка топографічного плану на паперовому та електронному носіях.
Законодавство України також передбачає обов’язкову реєстрацію результатів топографічної зйомки у відповідних державних органах, що дозволяє використовувати їх надалі для оформлення прав власності, отримання дозволів на будівництво та інших юридично значущих дій.< /span>
Вартість топографічних робіт
Важливо зазначити, що економія на топографічній зйомці може призвести до додаткових витрат у майбутньому через можливі помилки в проектуванні або будівництві. Ціна на ці послуги може значно змінюватись в залежності від ряду факторів, включаючи розмір та місце розташування ділянки, складність місцевості, обсяг необхідних робіт та кваліфікацію виконавця. Підсумкова сума може починатися від кількох тисяч гривень за маленькі ділянки та сягати десятків або навіть сотень тисяч для великих територій зі складними умовами.
- Розмір ділянки. Чим більше площа ділянки, тим більше часу та ресурсів буде потрібно на повну зйомку, що безпосередньо впливає на вартість робіт.
- Складність місцевості. Наявність значних перепадів висот, водойм, лісових масивів та інших природних перешкод може ускладнити проведення зйомки та збільшити її вартість.
- Потрібна точність. Висока точність зйомки, необхідна для деяких видів проектів, вимагає використання спеціалізованого обладнання та більш тривалого часу на обробку даних.
- Додаткові послуги. Створення топографічного плану, підготовка підсумкового звіту, реєстрація результатів у державних органах — усі ці послуги можуть включатися до загальної вартості робіт.
- Кваліфікація та репутація виконавця. Висококваліфіковані фахівці та компанії з хорошою репутацією можуть стягувати вищу плату за свої послуги, проте це забезпечує високу якість робіт та відповідність усіх необхідних стандартів.
При виборі компанії для проведення топографічних робіт важливо враховувати не лише вартість послуг, а й досвід роботи в аналогічних проектах, наявність ліцензій та сертифікатів, а також відгуки попередніх клієнтів. Рекомендується запросити портфоліо виконаних робіт та, по можливості, провести попередню зустріч для обговорення всіх деталей проекту.
Топографічна та геодезична зйомка
Це дві взаємопов’язані, але мають свої специфіки області, які відіграють важливу роль у будівництві, землеустрої та інших сферах. Обидві зйомки спрямовані на отримання даних про місцевість, але використовуються для різних цілей та завдань.
Топографічна зйомка фокусується на детальному зображенні поверхні ділянки, включаючи рельєф, розташування природних та штучних об’єктів. Мета топографії — створити точний і докладний план або карту місцевості, яка використовуватиметься у проектуванні, будівництві та для вирішення землевпорядних завдань.
Геодезична зйомка орієнтована на вимірювання та аналіз розмірів та форми Землі, визначення точних координат об’єктів на місцевості. Геодезія застосовується для визначення меж ділянок, створення систем координат для карт, а також для контролю за будівництвом та моніторингу деформацій будівель та споруд.
Незважаючи на відмінності, топографічна та геодезична зйомки мають і низку подібностей:
- Обидві використовуються для отримання даних про місцевість.
- У роботі застосовуються схожі технології та обладнання, такі як GPS-приймачі, тахеометри, нівеліри.
- І топографічна, і геодезична зйомки вимагають високої кваліфікації виконавців та точності у вимірах.
Топографічна та геодезична зйомки відіграють дуже важливу роль в успішному плануванні та реалізації будівельних та землевпорядних проектів. Точні та детальні дані про місцевість, отримані під час цих робіт, забезпечують основу для проектування, будівництва та подальшого використання територій. Вони дозволяють не тільки оптимізувати процеси планування та будівництва, але й запобігти можливим помилкам і конфліктам, пов’язаним з неправильним використанням земельних ресурсів.
Вибір кваліфікованого підрядника для проведення топографічних та геодезичних зйомок – ключовий фактор, що впливає на успішність будь-якого проекту. Важливо звертати увагу не лише на вартість послуг, а й на досвід, кваліфікацію фахівців та технічне оснащення компанії.