Проект трирівневого особняка

Проєкт цього трирівневого особняка вирізняє незвичайна архітектура споруди й оригінальне оздоблення фасадів, виконане із застосуванням вибіленого штукатурного покриття, натурального або штучного каменю та дерев’яних елементів. Великі та світлі вікна і широкий двосхилий дах роблять цей будинок схожим на альпійське шале, обладнане всім необхідним для комфортного проживання та відпочинку сім’ї з двома або трьома дітьми.

На першому поверсі резиденції розпланована велика гостьова зона, що включає дві гостьові спальні і простору камінну вітальню, по-сучасному поєднану з їдальнею і відкритою кухнею. Цей зал має окремий вихід на величезну криту терасу, на якій можна облаштувати вуличну їдальню або місце для комфортного відпочинку на природі. Поруч, на поверсі розміщені господарські приміщення, зокрема домова котельня та вбудований одномісний гараж із додатковим паркувальним місцем, розташованим зовні, під навісом даху.
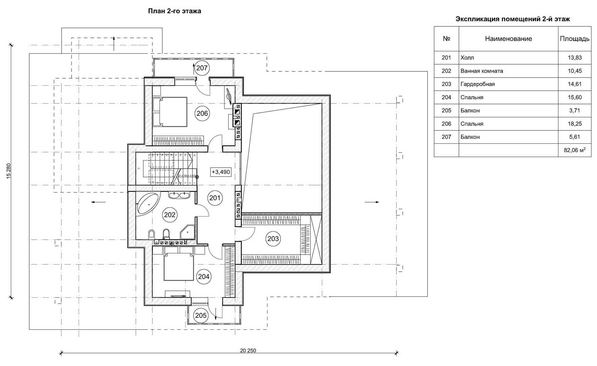
У мансардній частині шале архітектори розмістили особисті покої господарів. Тут заплановано дві комфортабельні спальні кімнати, великий санвузол із ванною, гардеробне приміщення та хол із мезоніном над вітальною залою.
На третьому – цокольному рівні будинку – розташована зона для активного відпочинку і релаксації, що включає тренажерний зал, сауну, кімнату відпочинку і два вільних приміщення, призначення яких залишено на розсуд господарів.

296 м2
Газобетон | піноблок, цегла, керамічні блоки
1
Так
5
4
3
Так
offer background